提供3000多款全球软件/控件产品
针对软件研发的各个阶段提供专业培训与技术咨询
根据客户需求提供定制化的软件开发服务
全球知名设计软件,显著提升设计质量
打造以经营为中心,实现生产过程透明化管理
帮助企业合理产能分配,提高资源利用率
快速打造数字化生产线,实现全流程追溯
生产过程精准追溯,满足企业合规要求
以六西格玛为理论基础,实现产品质量全数字化管理
通过大屏电子看板,实现车间透明化管理
对设备进行全生命周期管理,提高设备综合利用率
实现设备数据的实时采集与监控
利用数字化技术提升油气勘探的效率和成功率
钻井计划优化、实时监控和风险评估
提供业务洞察与决策支持实现数据驱动决策
原创|其它|编辑:郝浩|2009-04-02 13:30:40.000|阅读 423 次
概述:作为全球最大的搜索引擎,谷歌拥有拥有数量众多、规模庞大的服务器系统,但外界却知之甚少.周三,谷歌首次公开了其服务器设计的神秘面纱.
大多数企业都是从戴尔、惠普、IBM或Sun购买服务器系统,而谷歌的服务器系统却是自己设计的.谷歌服务器最令人意外的是,每台服务器都配有12V的备用电池.当主电源发生意外时,电池可以继续供电.
#慧都22周年庆大促·界面/图表报表/文档/IDE/IOT/测试等千款热门软控件火热促销中>>
作为全球最大的搜索引擎,谷歌拥有拥有数量众多、规模庞大的服务器系统,但外界却知之甚少.周三,谷歌首次公开了其服务器设计的神秘面纱.
大多数企业都是从戴尔、惠普、IBM或Sun购买服务器系统,而谷歌的服务器系统却是自己设计的.谷歌服务器最令人意外的是,每台服务器都配有12V的备用电池.当主电源发生意外时,电池可以继续供电.

谷歌首次公开了其服务器设计的神秘面纱

谷歌服务器的侧面

谷歌员工正在检查数据中心

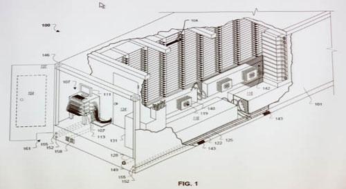
谷歌服务器设计图
通常,数据中心采用大型的不间断电源(以下简称“UPS”)作为备用电源,而谷歌服务器却采用了12V的电池.对此,本·翟称:“与UPS相比,电池的成本更低.”
而且,电池比UPS更有效率.通常,大型UPS的有效率为92%至95%,这意味着一部分电能被浪费掉,而电池的有效率为99.9%.
能源使用效率(以下简称“PUE”)是衡量数据中心是否节能的一个重要标准,数值为1代表所有的能耗全部用在设备上,而沒有用在冷卻或供电系统上;如果是1.5,意味着50%的能源被后者耗费.
2008年第三季度,谷歌数据中心的PUE值为1.21,本来已经很低,但第四季度又降至1.20,后又降至1.19.
谷歌一向重视节能,并愿意共享节能经验.谷歌运营副总裁乌尔斯·霍尔茨(Urs Hoelzle)称,随着环保意识的提升,能源价格的上涨,以及经济低迷导致企业削减运营成本,现在是谷歌共享节能经验的好时机.
另外,从2005年开始,谷歌的数据中心就采用了标准的集装箱式设计:每个集装箱拥有1160台服务器,能耗为250千瓦,而每个数据中心拥有多个集装箱.
谷歌的服务器厚度为3.5英寸,配备两个处理器、两块硬盘,采用拥有8个内存插槽的技嘉主板.谷歌核心服务器设计师本·翟(Ben Jai)称,谷歌服务器设计始于2005年,如今已进入第六代和第七代.
运营谷歌这种规模的大企业必然挑战重重,但同时不乏有利的一面.例如,某一领域的研发成果还可以应用到其他大量的基础架构中,从而加快投资回报速度.
本站文章除注明转载外,均为本站原创或翻译。欢迎任何形式的转载,但请务必注明出处、不得修改原文相关链接,如果存在内容上的异议请邮件反馈至chenjj@dmsbdw.cn
文章转载自:网友提供



接DevExpress原厂商通知,将于近日上调旗下产品授权价格,现在下单客户可享受优惠报价!
面对“数字中国”建设和中国制造2025战略实施的机遇期,中车信息公司紧跟时代的步伐,以“集约化、专业化、标准化、精益化、一体化、平台化”为工作目标,大力推进信息服务、工业软件等核心产品及业务的发展。在慧都3D解决方案的实施下,清软英泰建成了多模型来源的综合轻量化显示平台、实现文件不失真的百倍压缩比、针对模型中的大模型文件,在展示平台上进行流畅展示,提升工作效率,优化了使用体验。
本站的模型资源均免费下载,登录后即可下载。模型仅供学习交流,勿做商业用途。
本站的模型资源均免费下载,登录后即可下载。模型仅供学习交流,勿做商业用途。
服务电话
重庆/ 023-68661681
华东/ 13452821722
华南/ 18100878085
华北/ 17347785263
客户支持
技术支持咨询服务
服务热线:400-700-1020
邮箱:sales@dmsbdw.cn
关注我们
地址 : 重庆市九龙坡区火炬大道69号6幢
星空外围足球网(